

产品型号、名称
用途及适用范围
★ 用于压榨菠萝、苹果、梨等香蕉视频下载污污污;
★ 用于压榨桑椹、葡萄、桔子、橙等浆果;
★ 用于压榨西红柿、生姜、大蒜、芹菜等香蕉视频APP免费。
设备结构及工作原理
4.1 结构
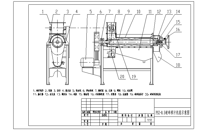
★ 由前支座、进料斗、螺旋、过滤网、盛汁器、后支座、出渣槽等组成,螺旋主轴左端支撑于滚动轴承座内,右端支撑于手轮轴承座内,电机通过一对三角皮带驱动螺旋进行工作。
2、工作原理
★ 本设备的主要构件是螺旋,螺旋沿着料渣出口方向底径逐渐加大而螺距逐渐减小,当物料被螺旋推进时,因螺旋腔体积的缩小,形成对物料的挤压而榨汁。
★ 螺旋主轴的转动方向从进料斗向渣槽方向看去,为顺时针方向。
★ 原料加入进料斗中,在螺旋的推进下受压,其压榨的汁液通过过滤网流入底部的盛汁器,而渣则通过螺旋与调压头的锥形部分之间形成的环状空隙排出,调压头沿轴向的移动可调整空隙的大小。用手顺时针(从设备的出渣槽向进料斗端看)转动手轮轴承座时,调压头向左,空隙即缩小,反之则空隙变大。改变孔隙的大小,即调整排渣的阻力,即可改变出汁率。但如果孔隙过小,在强力挤压下,部分渣的颗粒会和汁一起通过过滤网被挤出,尽管出汁率增加,但汁的质量相对下降,因此孔隙的大小应视用户的具体工艺要求而定。
原料处理量:0.5T/h(根据91香蕉视频在线看原料不同产量不等)
螺旋直径:Φ90mm
螺旋转速:400rpm 破碎机转速310转/分
过滤网孔径:Φ0.6mm
榨汁机功率:1.5KW 破碎机功率0.55KW
设备重量:约140公斤
外形尺寸:1100×330×1300mm